Sign In
My Account
Home
Work
About
Contact Us
PLAN
Sign In
My Account
Home
Work
About
Contact Us
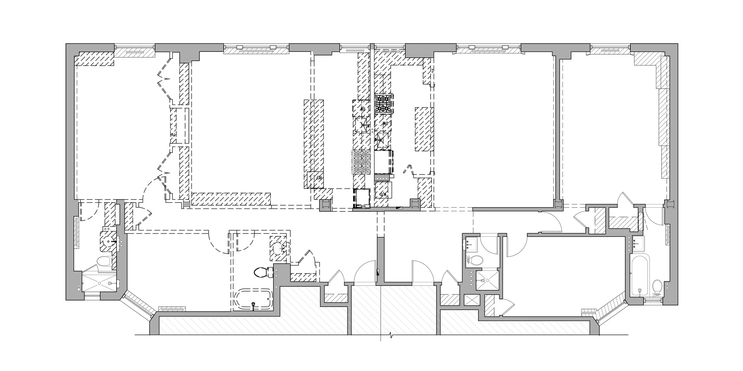
West 81st Street Apartment Combination
New York City
2,750 SQ. FT.